本文
唐戸市場リニューアル事業に関する官民対話[ご来場者向け駐車場のご案内]
唐戸市場リニューアル事業に関する官民対話「ご来場者向け駐車場のご案内」
ご来場者向け駐車場のご案内
令和7年10月21日(火)に実施する唐戸市場リニューアル事業に関する官民対話のご来場者向け駐車場については、下記の通りとなります。
当駐車場には観光バスの駐車できる駐車場となっておりますが、駐車区画線はなく、警備員等の配置もありませんのでご了承ください。
当駐車場には観光バスの駐車できる駐車場となっておりますが、駐車区画線はなく、警備員等の配置もありませんのでご了承ください。

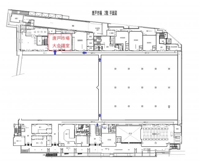
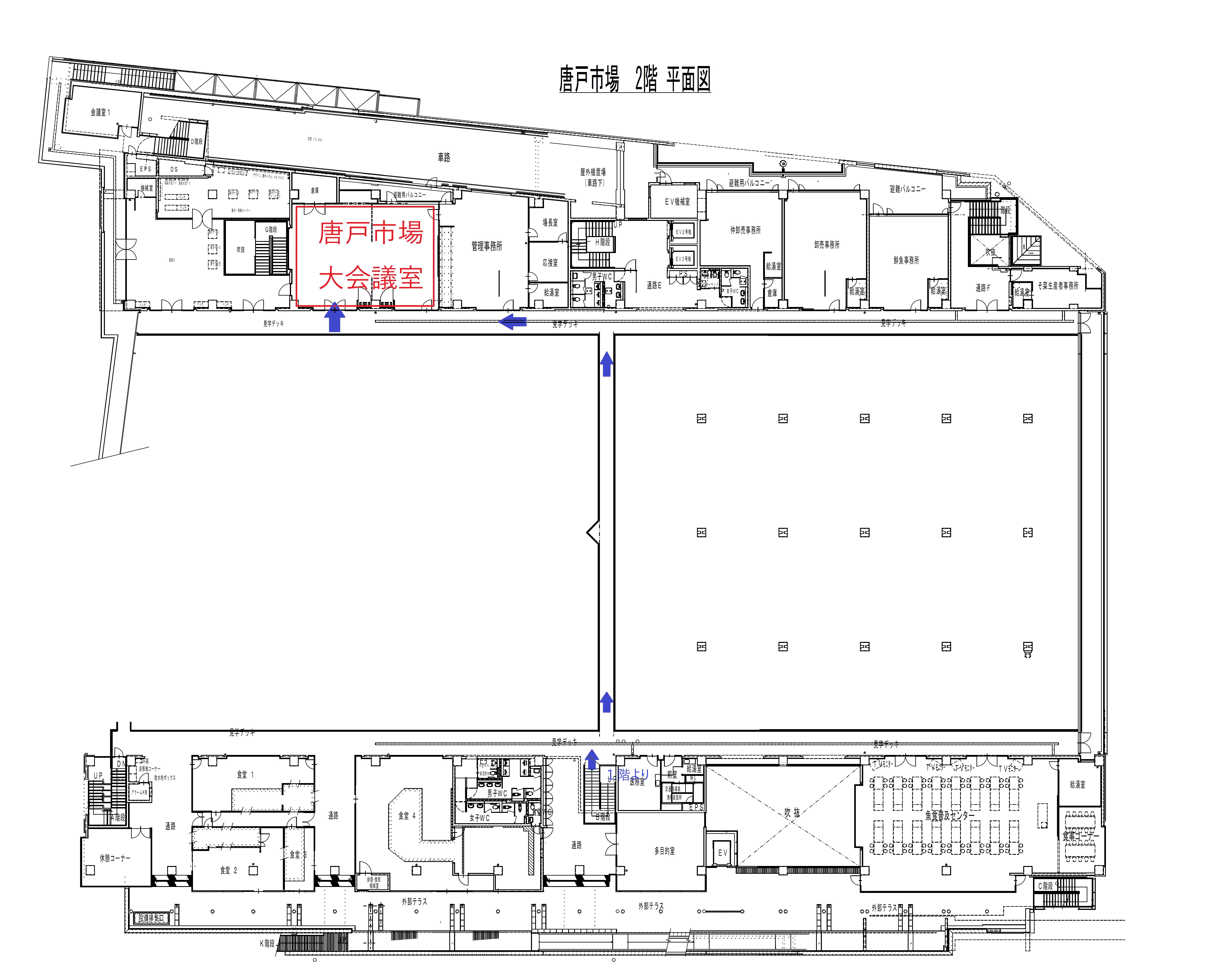
会場までのご案内
会場は、唐戸市場2階大会議室となります。
駐車場から会場までの参考経路は以下の通りとなります。
駐車場から会場までの参考経路は以下の通りとなります。


